Lisainformatsioon
Soovid elada mere ja looduse läheduses, kus on olemas hea ligipääs Pärnu populaarseimale tõmbekeskusele siis see on parim valik!Mai 67 aadressile kerkib uus kaasaegne B-energiaklassi korterelamu. Kortermajas on kaks torni, kummaski 41 ühe- kuni neljatoalist korterit, suurusega 36,4 m² kuni 99,4 m².
Elamu on valmis ja müüdud korteritesse on uued omanikud juba sisse kolinud.
Küsi minult infot ka elamu teiste müügis olevate korterite kohta!
ASUKOHT
- elamu kõrval uus ujula ja lasteaed
- vahetus läheduses Pärnu Koidula Gümnaasium ning samal tänaval Mai Põhikool
- liivane mererand kõigest 500 meetri kaugusel
- elamu lähedal kergliiklusteed, mida mööda saab kiirelt ja turvaliselt kesklinna või randa
- elamu lähedal tiheda liinigraafikuga bussipeatus
- vahetus läheduses suur Papiniidu Kaubamajaka kaubanduskeskus
PLANEERING
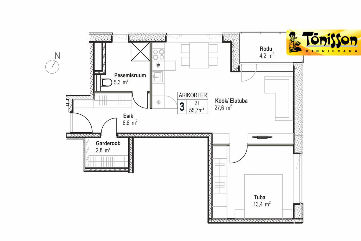
- kogupind 55,7 m², millele lisandub 4,2 m² avar rõdu
- eraldi asetsevad toad, avatud köök
- elutoa suurtest akendest tuleb palju valgust ja avaneb hunnitu vaade rohelusele
- I ja II-korrusel asuvad panipaigad
TEHNILINE INFO
- paneelelamu tagab soojuse, mürakindluse, tulekindluse ja pika-ealisuse
- korterite vahelised seinad on kergplokk
- vahelaed raudbetoonpaneelidest
- 3-kordne klaaspakett aknad ja rõduuksed
- heliisoleeritud raudbetoonpaneel põrandad
- hoone välisuks karastatud klaaspaketiga metallraamis uks
- SBS rullmaterjalist kattega soojustatud lamekatus
- elamus on linna kaugküttesüsteem
- vesipõranda küttesüsteem
- soojustagastusega ventilatsioonisüsteem
- energiamärgise klass „B“, tagab madalad püsikulud
SISEVIIMISTLUS
- korteri välisuks spoonitud puituks
- tubade seinad ja laed kaetud värviga
- tubade põrandatel naturaalpuit viimistluskattega laudparkett
- vannitoas keraamiline plaat
- vannitoa lagi moodulripplagi või värvitud kipslagi
- korteri siseustena kasutatakse spoonviimistlusega sileuksi
Korteri hinnale lisandub parkimiskoha ja panipaiga maksumus
- panipaiga maksumus: 3 000 – 4 500 eur
- parkimiskoha /hoovialal/ maksumus: 3 500 eur
Arendaja jätab endale õiguse hindu korrigeerida.
Korterelamu arendaja ja ehitaja on Fund Ehitus OÜ.
NB! Kuulutse fotod on illustratiivsed!
Võta kindlasti ühendust ja tule vaatama !
TÕNISSON KINNISVARAST SAAD TASUTA ERIALAST KONSULTATSIOONI JA PROFESSIONAALSET NÕUSTAMIST OSTMISEL JA MÜÜMISEL!
KÕIGE SOODSAMA KINNISVARA HINDAMISE SAAD ALATI MEILT!








