Lisainformatsioon
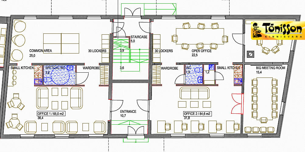
Kvaliteetne, möbleeritud ja koheselt kasutusvalmis äripind Pärnu südalinnas põhjalikult renoveeritud hoone I korrusel. Büroopinna koosseisu kuulub 3 open office-tüüpi ruumi, 3 koosolekuruumi, lisaks 2 eraldi kööginurka ja 2 WC-d, millest üks inva-WC. Lisaks paiknevad ruumis lukustatavad hoiukapid ja garderoobinurk. Sissepääs nii Hommiku tänava kui sisehoovi kaudu, hoovipoolsest uksest on olemas ligipääs ka ratastooliga. Kütteallikaks on kaugküte/põrandaküte, hea õhustiku tagab sundventilatsioon, ruumide aknad on avatavad.Valveteenust pakub G4S.
Autoga ligipääs, parkimine hoone ümbruses tänaval.
Üürile lisanduvad kõrvalkulud ja käibemaks. Üürilepingu sõlmimisel tasub üürnik esimese kuu üüri, tagatisraha ühe kuu üüri suuruses summas ja lepingutasu.
HELISTA JA TULE TUTVUMA!
TÕNISSON KINNISVARAST SAAD TASUTA ERIALAST KONSULTATSIOONI JA PROFESSIONAALSET NÕUSTAMIST OSTMISEL JA MÜÜMISEL!
KÕIGE SOODSAMA KINNISVARA HINDAMISE SAAD ALATI MEILT!





























