Lisainformatsioon
Soovid elada mere ja looduse läheduses, kus on olemas hea ligipääs Pärnu populaarseimale tõmbekeskusele siis see on parim valik!Mai 67 asub Mai elurajoonis, kõigest 1 km Pärnu rannast.
Lähedal on uus Raja ujula, kaubanduskeskus Kaubamajakas, Koidula gümnaasium ja lasteaiad.
Kergliiklusteed võimaldavad liikuda jalgsi või rattal Raeküla ja kesklinna suunas.
ELAMU
Kahe torni ja kahe trepikojaga, 10-korruseline raudbetoonist elamu.
Hoone konstruktsioon, küttesüsteem ja soojustagastusega ventilatsioon tagavad ökonoomse küttekulu ja energiamärgise B.
Elamus on 1-, 2-, 3- ja 4-toalised korterid.
Hoone 1. korrusel on 22 parkimiskohta ja jalgrattahoidla.
Hoone 2. korrusel on 82 panipaika ja korterid.
Hoone 9. ja 10. korrusel on 4-toalised korterid suurte terrasside ja rõdudega.
Majas on lift, mis piisav ka mööbli transportimiseks.
Õuealadel paiknevad 75 parkimiskohta autodele, haljastatud platsid, sõidu- ja käigurajad ning laste mänguväljakud.
KONSTRUKTSIOON
Vaivundament, raudbetoonpaneelidest välisseinad ja korterite vahelised vaheseinad, raudbetoonpaneelist vahelaed, raudbetoonist trepid, SBS rullmaterjalist kattega soojustatud lamekatus.
Plastikraamis aknad 3-kordse klaaspaketiga, karastatud klaaspaketiga metallraamis uksed elamu välisusteks, spoonitud puituksed korteritel.
TEHNOSÜSTEEMID
Kõik elamu korterid on varustatud vesi-põrandakütte ja individuaalse soojustagastusega ventilatsioonisüsteemiga.
Igal korteril on sideteenuse ettevõtega liitumise valmidus, lokaalne suitsuandur ja tehtud kaabeldustööd soovi korral turvafirmaga liitumiseks.
KORTER
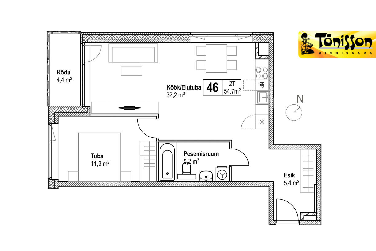
Avara elutoa ja ühe magamistoaga korter on liigendatud planeeringuga.
Korteril on LÕUNA- JA ÕHTUPÄIKESE SUUNAS asetsev RÕDU pindalaga 4.4 m2.
Pesemisruumis on VANN.
Iga korteri hinnale lisandub vähemalt ühe parkimiskoha ja panipaiga maksumus.
Panipaiga maksumus: 3 000 – 4 500 eur.
Parkimiskoha maksumus hoone 1. avatud korrusel: 6 000 €
Parkimiskoha maksumus hoovialal: 3 500 €
MÜÜGIHIND SISALDAB
- korteri valmidust vastavalt projektile
- siseviimistlust vastavalt valitud siseviimistluspaketile
- liitumistasu elektrivõrgu ettevõttega
- liitumistasu veevarustuse- ja kanalisatsiooni ettevõtjaga
- valve- ja tulekahjusignalisatsiooni liitumisvalmidus
- telefonivõrgu ja kaabeltelevisiooni liitumisvalmidus
MÜÜGIHIND EI SISALDA
- müügilepingu sõlmimisega seotud notaritasu ja riigilõivu
- auto parkimiskoha maksumust
- panipaiga maksumust
MÜÜGIPROTSESS
1) Broneerimine – korteri broneering kehtib 15 kalendripäeva (broneerime tasuta)
2) Notariaalne võlaõiguslik ostu/müügi leping – fikseeritakse poolte valikud, kohustused ja õigused. Klient tasub 10% ostu/müügi kogumaksumusest.
3) Notariaalne asjaõiguslik ostu/müügi leping – sõlmitakse peale hoone valmimist. Klient tasub 90% ostu/müügi kogumaksumusest.
Korterelamu arendaja ja ehitaja on Fund Ehitus OÜ.
Hind sisaldab käibemaksu.
Arendaja jätab endale õiguse hindu korrigeerida.
TÕNISSON KINNISVARAST SAAD TASUTA ERIALAST KONSULTATSIOONI JA PROFESSIONAALSET NÕUSTAMIST OSTMISEL JA MÜÜMISEL!
KÕIGE SOODSAMA KINNISVARA HINDAMISE SAAD ALATI MEILT!




































